임지혜학생_전산응용건축제도기능사 결과물 > 포트폴리오

본문 바로가기
포트폴리오기초 디자인 교육부터 현장 실무 및 디지털 디자인 활용능력을 개인별 책임 책임 교육 실현

포트폴리오

  • 포트폴리오
포트폴리오

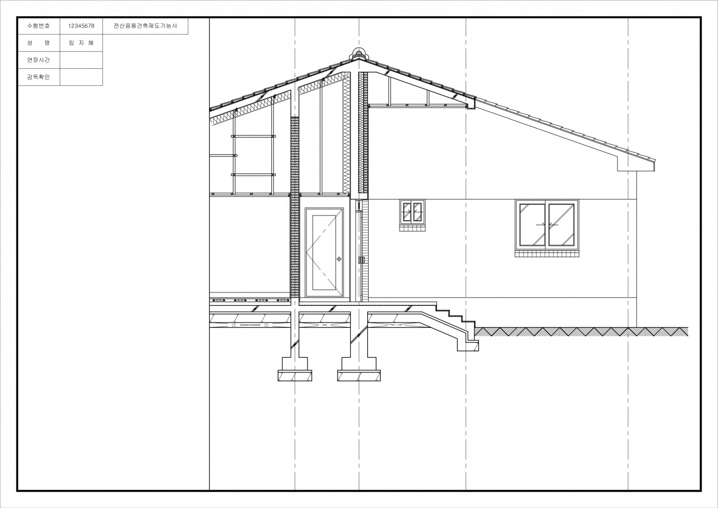
전산응용건축제도기능사 | 임지혜학생_전산응용건축제도기능사 결과물

페이지 정보

작성자 관리자 작성일24-04-03 22:01 조회639회 댓글0건

본문

57ab58028a94efe3d08a703780e855e1_1712149


57ab58028a94efe3d08a703780e855e1_1712149
 


최고 수준의 교육시설을 제공합니다.
CS건축아카데미의 감각적 인테리어 시설과 최신의 시스템 사양을 통해 교육을 받으실 수 있습니다.
+ 온라인문의